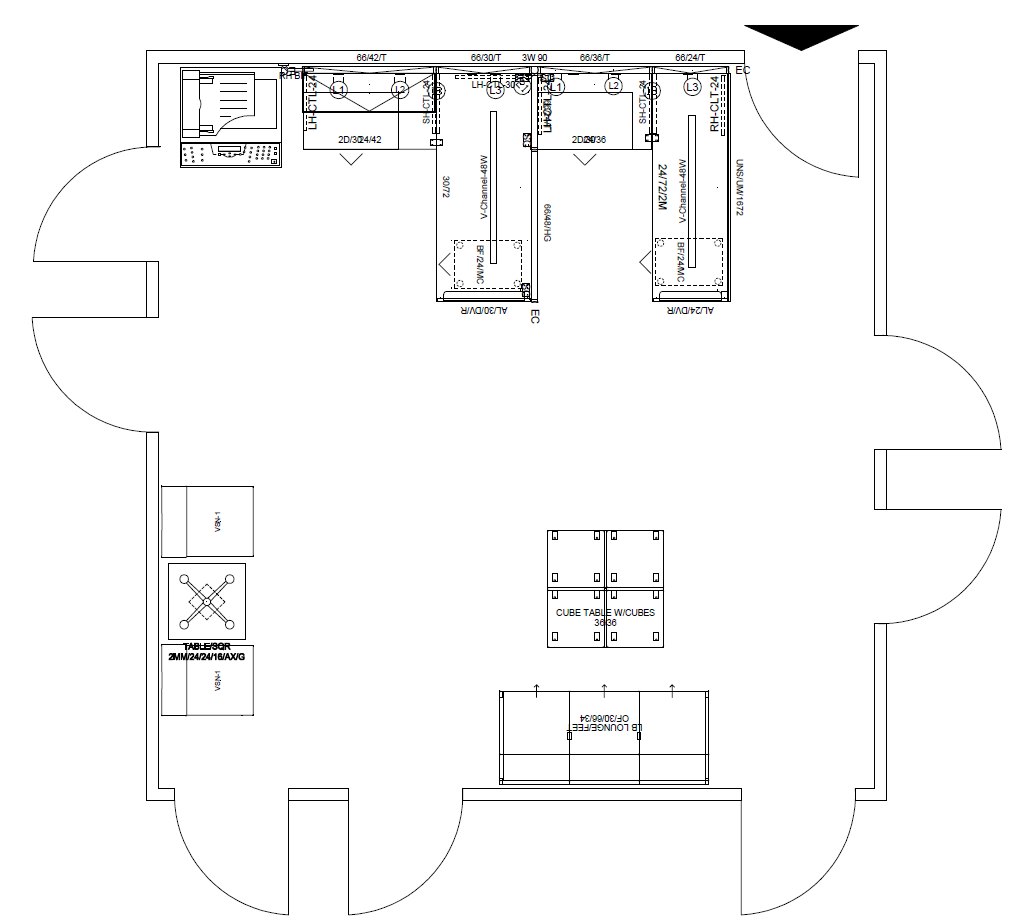
The office of student engagement isn’t short of movement. They wanted the space to be fun and exciting for the events they plan on campus. All students at some point visit this office. The staff in the office desired openness for various group sizes. At the same time, they needed privacy for the full time office manager and for the student office assistant. I added a monolithic panel and frosted glass panel for office manager so she can see if someone walks in but also has privacy to work. The office assistant’s workstation is open so he/she can attend to those entering into the space.
We utilized the AIS Volker Cubes and roll up Ideon Visit chairs for quick flexible seating larger meetings. I also added cushions on the workstations’ mobile pedestals for additional overflow seating. We can comfortably seat thirteen people in this space, but all of the seating stows away as to not take up space.




